Former Nightclub and Flat with Commercial Kitchen – Bedlington, Northumberland

£9.00
Leisure & Hospitality
bedlington, Northumberland
Good
7 views
Oct 8, 2025

Description

So, I’ve got this old nightclub/bar/restaurant property here in Bedlington, Northumberland, and I’m looking to rent it out. It’s actually a bit of a hidden gem — it’s been converted over the years and now has a real mix of commercial and private spaces.

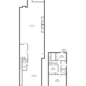
It’s just a couple of minutes walk from the town centre and the local market — good location for anyone wanting to build something on the ground. The space is over 4,500 sq ft and includes:
- A proper 2-bedroom flat for the owner (so you can live there if you want)
- A big open bar area — used to be a pool hall, so it has that old-school vibe
- A full commercial kitchen
- A bar area with seating, plus a front lounge
- Cellars with cooling equipment — useful for drinks or food storage
- Male and female toilets

Important note: The property no longer has a premises licence, but that doesn’t mean you can’t apply for one. It’s definitely possible — you’d just need to go through the process yourself.

I’m offering long-term leases — no pressure, no lock-in. We’re flexible on how long the lease is, and we can even offer a tenant-only break clause after three years. That means if things don’t work out, you can leave early with three months’ notice (on the break date). But if your business takes off, you can stay for the full term.

Leases are fully assignable — if you build up the place and decide to sell it later, you can pass it on to a new tenant without any hassle.

We’re the freeholders — not an agent. No agent fees, no legal fees, no hidden charges. The only things you pay upfront are the rent and a deposit. Rent is £9.00 a week — that’s actually quite reasonable for the size and potential.

Business rates from April 2023 are £7,700, but since it’s below the threshold for small business relief, you probably won’t have to pay them. I’ve checked that — it’s not a big one.

I don’t get involved in how you run the business — it’s all up to you. I just own the space.

If you’re interested, just hit me up on WhatsApp — I’ll send over a video tour and go through everything in more detail. No pressure, just real talk.

Let me know if you’d like to see it.
×

Verify You're Human

Drag each icon to the correct environment image.

Jerry the Gerbil

Jerry the Gerbil

Your AI shopping assistant